






LX 型電動單梁懸掛起重機是按國家標準 JB/T2603-2008《電動單梁懸掛起重機》設計制造的輕小型起重設備,與 CD1/MD1 型電動葫蘆配套使用,形成有軌運行的起重系統。其核心特點是懸掛安裝在廠房頂部軌道上,完全不占用地面空間,特別適合空間受限的廠房和倉庫。工作級別 A3-A5 (輕 - 中級),起重量 0.5-10 噸,跨度 3-16 米,是中小型車間理想的物料搬運設備。
單主梁結構:小噸位 (≤2 噸) 采用工字鋼 + 槽鋼組合,大噸位 (≥3 噸) 采用鋼板壓制成型的箱型梁,兼具強度與輕量化
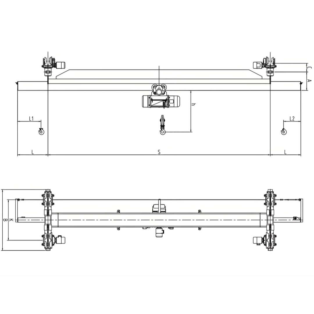
端梁組件:由槽鋼或鋼板焊接而成,與主梁采用銷軸連接 (小跨度) 或焊接固定 (大跨度)
懸掛裝置:通過車輪組直接懸掛在廠房頂部的工字鋼軌道上,車輪與軌道間隙 3-5mm,確保運行平穩
標配 CD1 (單速) 或 MD1 (雙速) 鋼絲繩電動葫蘆,集成電機、減速器、卷筒和制動器
電動葫蘆沿主梁下翼緣軌道橫向移動,實現物料精準定位
雙速型:主速 8m/min,慢速 0.8m/min,滿足精密裝配需求
大車運行:端梁兩側車輪沿廠房軌道縱向移動 (20-30m/min)
小車運行:電動葫蘆在主梁下翼緣橫向移動 (20-30m/min)
驅動采用錐形轉子制動電機,斷電即停,安全可靠
采用 "三合一" 驅動系統 (電機 + 減速器 + 制動器),結構緊湊,維護簡便
大車移動:大車運行機構驅動端梁沿廠房軌道縱向移動 (X 軸)
小車移動:電動葫蘆沿主梁橫向移動 (Y 軸)
物料升降:電動葫蘆電機驅動卷筒收放鋼絲繩,實現吊鉤垂直起降 (Z 軸)
通過三向協同,實現物料在廠房內任意位置的精準吊運
地面遙控:標配便攜式遙控器,操作半徑≥30 米,視野開闊,操作靈活
手柄控制:帶線手柄操作,適用于固定區域作業
三機構 (起升、大車、小車) 獨立控制,可單獨或聯動運行,操作簡單直觀
空間利用率高
結構輕量,安裝簡便
經濟高效
價格比雙梁起重機低 20-40%,性價比高
能耗低,維護簡單,運行成本低
安全可靠
機械制造:零部件裝配、生產線內物料轉運、設備檢修
電子 / 輕工:精密儀器搬運、小件物料輸送、流水線作業
倉庫物流:貨物堆垛、分揀,尤其適合輕型貨物 (≤10 噸)
小型水電站 / 泵房:設備安裝與維護
汽車維修:中小型汽車零部件吊裝、發動機維修
食品 / 醫藥:生產線間物料轉移、倉儲物流 (潔凈環境可選)
起重量選擇
跨度考量
環境適配
高溫環境 (>40℃):選擇高溫型電動葫蘆
粉塵環境:提高電氣防護等級至 IP54/IP55
防爆需求:選擇 LXB 型防爆單梁懸掛起重機
操作方式選擇
開闊場地:優先選遙控器操作,靈活便捷
固定區域:可選手柄控制,成本更低
精密作業:可選變頻控制,實現微速精準定位

| 參數類別 | 數值范圍 | 說明 |
|---|
| 額定起重量 | 0.5/1/2/3/5/10 噸 | 標準系列,特殊定制可達 20 噸 |
| 跨度 | 3-16 米 | 標準規格:3/4.5/6/7.5/9/10.5/13.5/16 米 |
| 起升高度 | 6-30 米 | 常用:6/9/12/18 米,根據廠房高度定制 |
| 工作級別 | A3-A5 | A3: 輕級 (≤10% JC);A4: 中級 (25% JC);A5: 中重級 (40% JC) |
| 工作環境 | -25℃~+40℃濕度≤85% | 不適合易燃易爆、腐蝕性環境 |
| 電源 | 三相 AC 380V/50Hz | 標準工業電源,可定制 |
| 運行速度 | 大車:20-30m/min小車:20-30m/min起升:8m/min (單速)0.8/8m/min (雙速) | 變頻可選,實現平滑啟停和精準定位 |







1、售前服務
2、售中服務
3、售后服務
按合同貨客戶約定時間進行設備安裝、調試、維修 。
根據客戶需求,提供現場培訓。
接待處理客戶對產品質量、服務質量的投訴,快速到達現場解決問題。
建立設備用戶檔案,每臺設備的安裝、調試、維修記錄全部存檔,保存。保證每個客戶的每臺產品具有服務的可追塑性及向客戶對每臺設備保養提供技術支持。
不定期進行客戶回訪,采集客戶對產品及服務的意見和建議并及時改進。
各服務站由售后服務站統一調配,保證服務的及時性,有效性。
