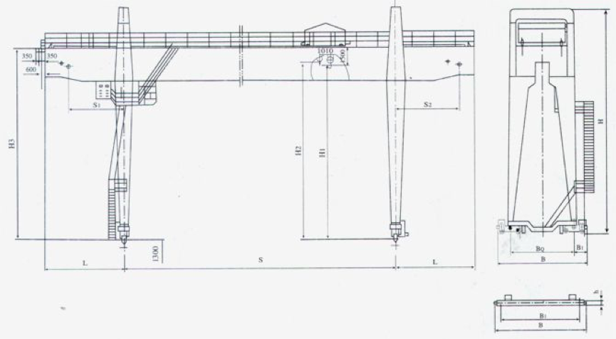
MG型-門式起重機
適用露天倉庫、料場、鐵路貨站、港口碼頭等裝卸搬運。還可以配以多種專用鉤具進行多種特殊作業
- 型號: MG型
- 品牌: 恒立源
- 跨度: 可定制
- 起重量: 可定制
- 起升高度: 可定制
關閉
產品咨詢
客服熱線:400-700-9997

