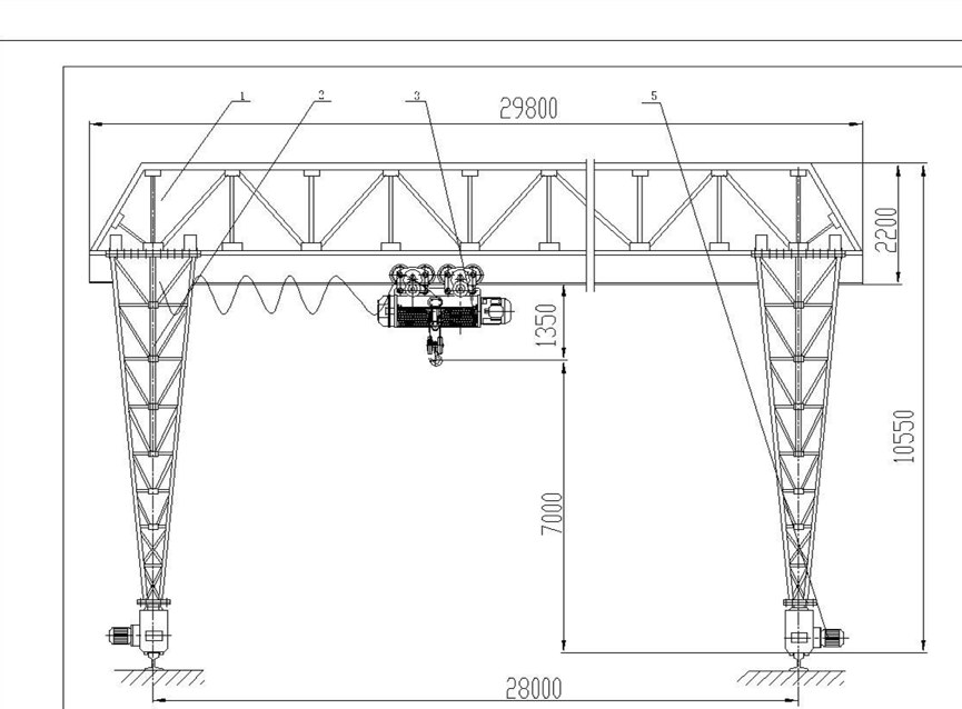
MHh型-門式起重機
本機是與CD?、MD?型電動葫蘆配套使用,適用于露天作業的固定跨間,本機禁止吊運熔化金屬及易燃、易爆物品,根據用戶要求還可制成單端外伸懸臂式或無懸臂式結構
- 型號: MHh型
- 品牌: 恒立源
- 跨度: 可定制
- 起重量: 可定制
- 起升高度: 可定制
- 工作級別: A3-A5
關閉
產品咨詢
客服熱線:400-700-9997

